MHZ型電動葫蘆抓斗門式起重機
本文鏈接:/msqzj/1326.html???發布時間:2022-01-20 10:46:09??點擊量:5455
MHZ型電動葫蘆抓斗門式起重機產品簡介
MHZ型電動葫蘆抓斗門式起重機與CD型電葫蘆及抓斗起重機配套設施應用,是一種有軌運作的中小型吊車,適用吊重5-10噸,適用跨距12-30米,辦公環境-20℃-40℃中間。本商品為一般主要用途起重設備,多用以戶外場地及庫房的裝卸搬運或爬取原材料,本商品有路面控制和房間內控制二種形式。

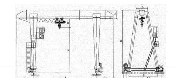
MHZ型電動葫蘆抓斗門式起重機結構圖

MHZ型電動葫蘆抓斗門式起重機參數圖

文章聚合頁面:
MHZ型
電動葫蘆
門式起重機